Sanitary installation isometric view and single line view in AutoCAD
Description
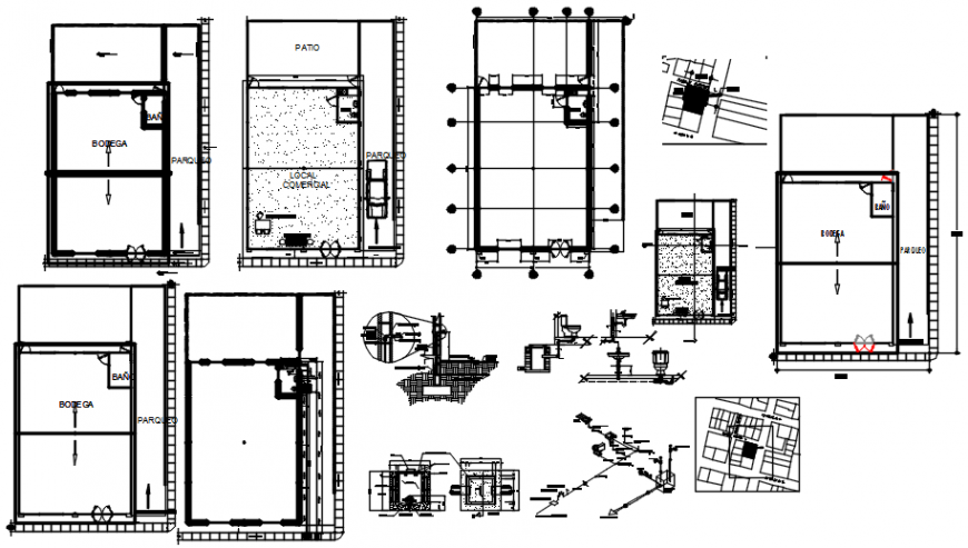
Sanitary installation isometric view and single line view in AutoCAD isometric view include washing area and sanitary area, single water line and control system and controlling of black water area and washing area.
File Type:
DWG
File Size:
—
Category::
Dwg Cad Blocks
Sub Category::
Sanitary CAD Blocks And Model
type:
Gold

Uploaded by:
Eiz
Luna

